Umbau Villa Sthamer
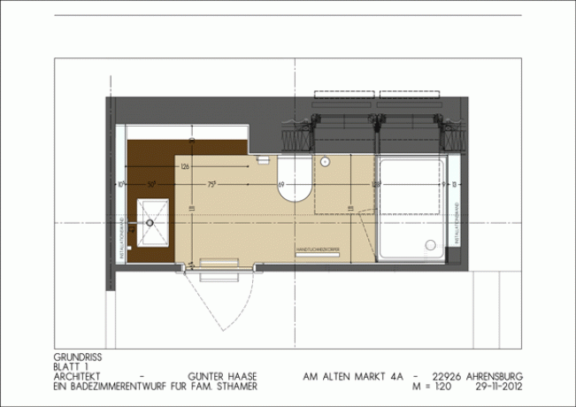
Umbau eines Dachgeschosses in einer Gründerzeitvilla
Familiengerechter Ausbau eines Dachgeschosses.
Größe: - m² BGF
Zeitraum: 2012
Nutzung: Wohnen
Umbau eines Dachgeschosses in einer Gründerzeitvilla
Familiengerechter Ausbau eines Dachgeschosses.
Größe: - m² BGF
Zeitraum: 2012
Nutzung: Wohnen